Cena: 1 200 000
Cena za metr kwadratowy: 7 058 zł
OSIEDLE CHOPINA
Na sprzedaż nowo wybudowany dom o powierzchni mieszkalnej 170 m² dwu-kondygnacyjny w zabudowie bliźniaczej na osiedlu Chopina w Darłowie.
W cenie budynku zawarte są również :
– loggia (8 m2),
– zadaszony taras (8 m2),
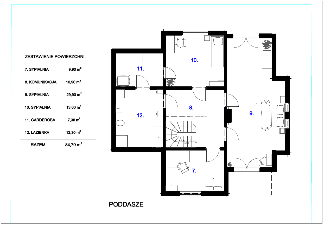
– strych z możliwością zagospodarowania ( 32 m2 – po podłodze),
– miejsca parkingowe na działce,
– ogród.
Dzięki zdobytemu doświadczeniu działając od ponad 30 lat na rynku budowlanym stworzyliśmy wyjątkowe lokale mieszkalne i domy uwzględniające potrzeby wymagającej klienteli stosując najlepsze dostępne na rynku rozwiązania budowlane.
Osiedle położone jest blisko centrum (10 minut pieszo) jednocześnie otoczone naturą. W pobliżu znajduje się dużo terenów zielonych w tym lasy, rzeka, pola, ścieżki wędrowne i rowerowe.
DANE TECHNICZNE
Opis technologii i dane techniczne lokalu:
Powierzchnia:171 m²
Położenie: ul. Jacka Kaczmarskiego 7
Kierunki okien: wschód, zachód, południe
Powierzchnia działki: 586 m²
Budynek posiada decyzję pozwolenie na użytkowanie.
Dom wykonany jest z materiałów najwyższej jakości przez ZPB M. Raczkowski zajmujący się kompleksową budową obiektów z ponad 32-letnim doświadczeniem.
Działka – własność hipoteczna
Elementy konstrukcyjne budynku:
-
fundamenty – ławy żelbetonowe, ściany fundamentowe z bloczków betonowych
-
ściany: konstrukcyjne i zewnętrzne z gazobetonu, działowe murowane z gazobetonu
-
strop: gęsto-żebrowy TERIVA I
-
więźba: konstrukcja drewniana pokryta dachówką cementową w kolorze grafitowym
OPIS
Pomieszczenia funkcjonalnie zaprojektowane, z myślą o osobach ceniących przestrzeń i wygodę.
Cena obejmuje dom wykończony w stanie deweloperskim o podwyższonym standardzie tzn.:
-
kompletna instalacja elektryczna wraz z osprzętem elektrycznym
-
kompletna instalacja centralnego ogrzewania – piec kondensacyjny gazowy z podgrzewaczem ciepłej wody użytkowej
-
ogrzewanie podłogowe w salonie, kuchni i łazience
-
instalacja wodna i kanalizacyjna z podejściami do przyborów sanitarnych bez białego montażu. Odprowadzenie ścieków do kanalizacji miejskiej.
-
okablowanie – domofon, alarm, RTV
-
ściany i stropy: tynki cementowe wykończone gładzią gipsową pomalowane dwukrotnie na biało
-
posadzki betonowe zatarte na gładko
-
wysokiej klasy okna i drzwi balkonowe PCV
-
drzwi zewnętrzne oraz do mieszkania
-
elewacja – tynk strukturalny na styropianie gr. 15 cm
-
miejsce parkingowe na działce
Brak podatku od czynności cywilno-prawnych!
POŁOŻENIE OBIEKTU
Dojazd do budynku bezpośrednio dostęp przez drogę asfaltową – ul. Chopina oraz drogę wewnętrzną – ul. Jacka Kaczmarskiego, w pięknej i spokojnej okolicy. Dookoła dużo zieleni i jednocześnie szybki dojazd do centrum miasta (w promieniu 500 m sklepy, dyskonty, szkoła, przedszkole, przychodnia, budynki jednorodzinne).
Przedstawiona oferta cenowa ma charakter informacyjny i nie stanowi oferty handlowej w rozumieniu Art.66 par.1 Kodeksu Cywilnego
Przestrzeń i wygoda. Zamieszkaj 4 km od morza!
Oferta bezpośrednia, bez kosztów pośrednictwa.
Zachęcamy do kontaktu:
e-mail: marek@m-raczkowski.pl
tel. 606 601 916